Hotel Sectors
Hotel kitchens have to perform under periods of immense pressure every day
Choosing the right commercial kitchen supplier is critical to make sure your kitchen doesn’t let you down.
Complete Catering Projects are experts in designing and installing commercial kitchens for the hotel and hospitality sector, with over 40 years of combined experience in the industry.
Our team will assess your business needs to create a bespoke kitchen concept that will optimise your operations.
First Steps
Hotel Site Survey and Consultation
At Complete Catering Projects, we know that every hotel kitchen has different schedules and requirements. That’s why our site survey and consultation process is thorough, getting to know the exact needs of your commercial kitchen and the pressure points it faces.
We take the time to understand your business in full, taking into consideration every detail of its traffic flows and the space available to begin to design a fully optimised workspace for your hotel kitchen.
Our experts can advise on which equipment will be best suited to your needs, making sure your hotel kitchen operation is fully optimised for the best result for your business.
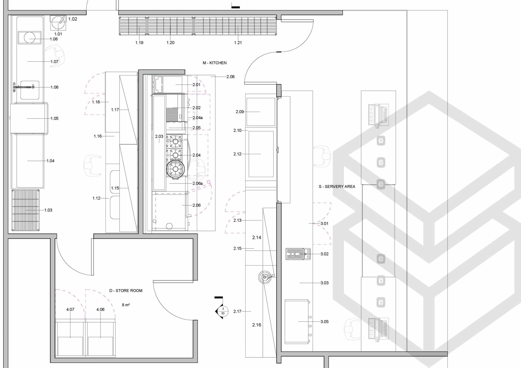
Latest CAD Software
Hotel Kitchen Design
Complete Catering Projects are specialists in commercial kitchen design for the hotel and hospitality sector, from small boutique hotels to large international chain operations. No matter the size, we approach each project with the same level of first-class service.
We use the latest in CAD drawing technology to bring your new commercial kitchen design to life. Using 2D CAD drawings we can initially create a bespoke kitchen layout that fully optimises all available space.
We then use 3D CAD visualisations to allow you to see how your kitchen would look and feel after installation, allowing for changes to be made to suit your requirements at every stage.

Highest Quality Equipment
Catering Equipment Supply
Facing constant pressure, we understand that it is business-critical for hotel kitchens to perform reliably every day. Serving potentially hundreds of meals daily, your equipment needs to be of the highest quality to avoid kitchen downtime.
At Complete, we can supply every aspect of your hotel kitchen, including servery counters, combi ovens, ventilation, cold rooms and more.
We only supply the most prestigious, industry-recognised brands. Along with our 24-month equipment warranties, and 3-month parts warranties, we can be sure to deliver commercial kitchen solutions that your business can rely on.
Working Around You
Hotel Kitchen Installations
Our vast experience in the hospitality sector allows us to fully understand the need for a smooth installation, with minimal downtime caused.
Regardless of whether it’s a one-off boutique hotel or a nationwide chain, we apply the same level of service to each project we approach.
Our experienced and accredited engineers are all fully DBS checked, and hold Gas Safe certifications, allowing us to complete every part of your equipment installation without the need for third-party engineers, and delivering complete peace of mind.
Furthermore, our project management service allows for your hotel kitchen installation to be as stress-free as possible, with our expert team always working to your budget and schedule.

First Steps
Ongoing Maintenance
You can rely on Complete for your ongoing aftercare and maintenance support.
We work closely with Midlands Catering Equipment to provide tailored PPM contracts to suit your specific needs, delivering the same level of first-class service whilst providing maintenance to your restaurant kitchen.
Our Sectors
Excellent knowledge across all sectors
We specialise in comprehensive commercial kitchen design and installs for the educational sector.
The highest quality equipment & fully optimised design is key to commercial kitchen functionality.
We design and install cafe kitchens with traffic flow, and functionality front of mind.
Schools Case Studies
Putteridge High School canteen couldn’t cope with the demand
Our client asked us to provide a catering pod in their external playground area to help ease the strain on the queue in the main cafeteria.
Restaurants Case Studies
Kitchen and ventilation design for Cambridge Country Club
Complete Catering Projects are leaders in commercial kitchen design, with a wealth of experience in creating restaurant kitchens that function to the highest ability.
Cafes Case Studies
Collaborating with the interior fit-out company to design and fit counters and equipment
Creating efficient designs for cafe kitchens can often seem challenging. Varying vastly in size and often with very limited space available.
A service you can trust
Get in touch
If you have any questions regarding your commercial kitchen project then please fill in the contact form and one of our friendly experts will get back to you.
GET IN TOUCH



