School Sectors
Complete Catering Projects are experts in school kitchen design
Our intelligent design process and planning are a result of a thorough consultation with each client, assessing their individual needs and objectives with our in-depth on-site analysis. As a result, we provide school kitchen concepts that work to every requirement of our clients business, optimising their operations and helping them achieve higher operation uptime.
Each commercial kitchen is bespoke in its design and build for nurseries, schools, colleges, and universities.
First Steps
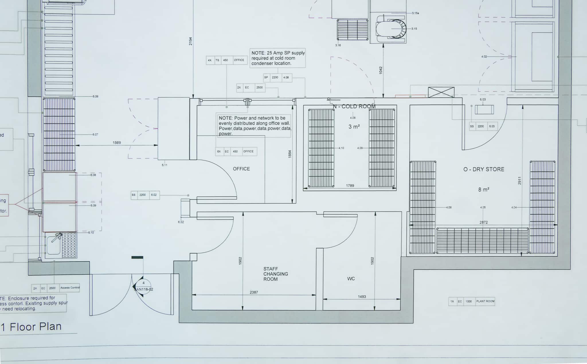
School Site Survey and Consultation
A thorough site survey and consultation is the first step to your new school kitchen project. We take the time to fully understand your requirements, taking into consideration every detail of its traffic flows and pressure points to begin to design a fully optimised workspace for your operations.
With over 40 years of experience, our expert team can advise you on which equipment will work best for your specific needs, making sure your school kitchen operation is fully optimised for the best result for your organisation.
Latest CAD Software
School Kitchen Design
Complete Catering Projects are commercial kitchen design specialists with a wealth of experience in supplying kitchens for the educational sector. From nurseries to universities, we have the expertise to create intelligent kitchen designs to suit your needs and create a kitchen that performs tirelessly every day.
We use the latest CAD software to produce 2D and 3D visualisations to bring your bespoke design to life, ensuring that the space will work for you before your new equipment is installed.

Highest Quality Equipment
Catering Equipment Supply
Kitchens in the educational sector face constant periods of high use, serving many people in short spaces of time. This pressure means that ensuring school kitchen equipment is of the highest operational standard is business-critical. Here at Complete, we supply only the highest quality commercial kitchen equipment, from the most prestigious, industry-recognised brands.
Our range of school catering equipment includes a wide variety of catering products, including servery counters, combi ovens, ventilation, cold rooms and much more. We can supply every aspect for your new kitchen project. Furthermore, we include a full manufacturer’s warranty and guarantee for all products installed.
Working Around You
School Kitchen Installations
We apply the same level of first-class customer service to every educational sector project we approach. Our engineers are industry-regulated, highly qualified, and fully DBS checked to deliver complete peace of mind to our clients.
Our installations will work around the needs of your operations, allowing for minimal downtime and disruption. Furthermore, our complete project management service allows for your school kitchen installation to be as stress-free as possible, with our expert team always working to your schedule and budget.
First Steps
Ongoing Maintenance
Restaurant kitchens perform under intense pressure and their functionality is business-critical, so reliable maintenance is crucial.
We work closely with Midlands Catering Equipment to provide tailored PPM contracts to suit your specific needs, delivering the same level of first-class service whilst providing maintenance to your restaurant kitchen.
Our Sectors
Excellent knowledge across all sectors
The highest quality equipment & fully optimised design is key to commercial kitchen functionality.
We are experts in the design, supply, install of hotel kitchens from the ground up.
We design and install cafe kitchens with traffic flow, and functionality front of mind.
Restaurants Case Studies
Kitchen and ventilation design for Cambridge Country Club
Complete Catering Projects are leaders in commercial kitchen design, with a wealth of experience in creating restaurant kitchens that function to the highest ability.
Hotels Case Studies
Le Manoir’s existing canteen was very dated and run down
Complete Catering Projects are experts in designing and installing commercial kitchens for the hotel and hospitality sector.
Cafes Case Studies
Collaborating with the interior fit-out company to design and fit counters and equipment
Creating efficient designs for cafe kitchens can often seem challenging. Varying vastly in size and often with very limited space available.
A service you can trust
Get in touch
If you have any questions regarding your commercial kitchen project then please fill in the contact form and one of our friendly experts will get back to you.
GET IN TOUCH





















